.
.
✅ Llave en mano: nosotros nos encargamos de todo.
✅ 100% Personalizable: diseño, superficie, distribución, calidades.
✅ Transparencia total: controlas todos los pagos.
✅ Proyectos desde 345.000€.
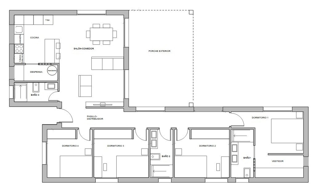
👉 4 habitaciones, 2 baños, aseo, porche
👉 Aerotermia
👉 Eficiencia energética grado A





Actualmente hay 2 opciones:
🏗️ Parcela 1: zona Hacienda Santa María, 450m2 desde 80.000€.
🏗️ Parcela 2: zona Hacienda Santa María, 450m2 desde 80.000€.
🏠 Total del proyecto: desde 345.000€.
Tú decides cómo quieres tu casa ideal, a tu gusto y presupuesto.
Menos impuestos al aplicarse un 10% en construcción en vez de 21%.
Más económico al evitarte el 20-25% de margen de las promotoras.
Como lo oyes, tu casa a medida como siempre soñaste, con la distribución y acabados deseados, totalmente adaptable a tus intereses.
Nuestro equipo experto se encarga de analizar opciones, evaluar su viabilidad y presentarte las mejores alternativas según tus necesidades y presupuesto.
Nos encargamos de todos los trámites necesarios, incluyendo la obtención de licencias de obra, permisos municipales y la conexión a suministros básicos como agua y electricidad.Te buscamos financiación.
Podrás definir totalmente a tu gusto la distribución de cada estancia de la vivienda, ajustándose totalmente a tus necesidades familiares.
Colaboramos con empresas constructoras de confianza que comparten nuestros altos estándares de calidad. Además, supervisaremos y gestionaremos las certificaciones de obra durante todo el proceso de la construcción.
Podrás elegir los materiales de la vivienda desde el principio, e incluso durante la construcción. Así, evitamos reformas innecesarias una vez terminada la obra.
Nos encargamos de todo el proceso de la construcción de tu vivienda hasta el final, para que solo tengas que preocuparte de definir cómo quieres que sea la vivienda y ver cómo se va construyendo.
© Obra Nueva a Medida 2026 – Política de Privacidad
¿Chateamos?